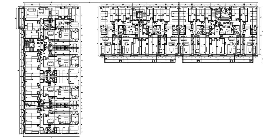
31 Logements, Locaux Commercials et Parking souterrain

Cervelló
2002

Promoteur: Promotions Cervelló 2002 / Èquipe de rédaction: JORNETLLOPPASTOR / Collaborateurs: Martí Cabestany, structure / Typologie: Habitation Collective / Surface: 6.382 m².