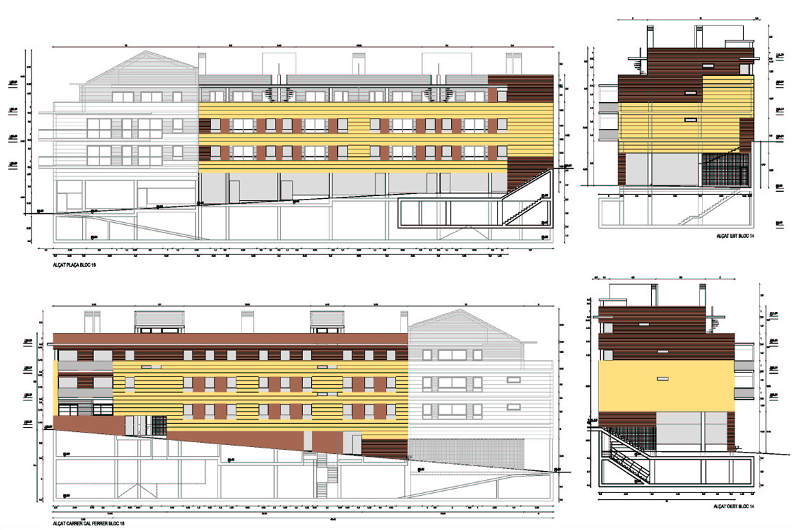
31 Viviendas, Locales comerciales y Aparcamientos subterráneos

Cervelló
2002

Promotor: Promociones Cervelló 2002 / Equipo redactor: JORNETLLOPPASTOR / Colaboradores: Martí Cabestany, estructura / Tipología: Vivienda Plurifamiliar / Superficie: 6.382 m².