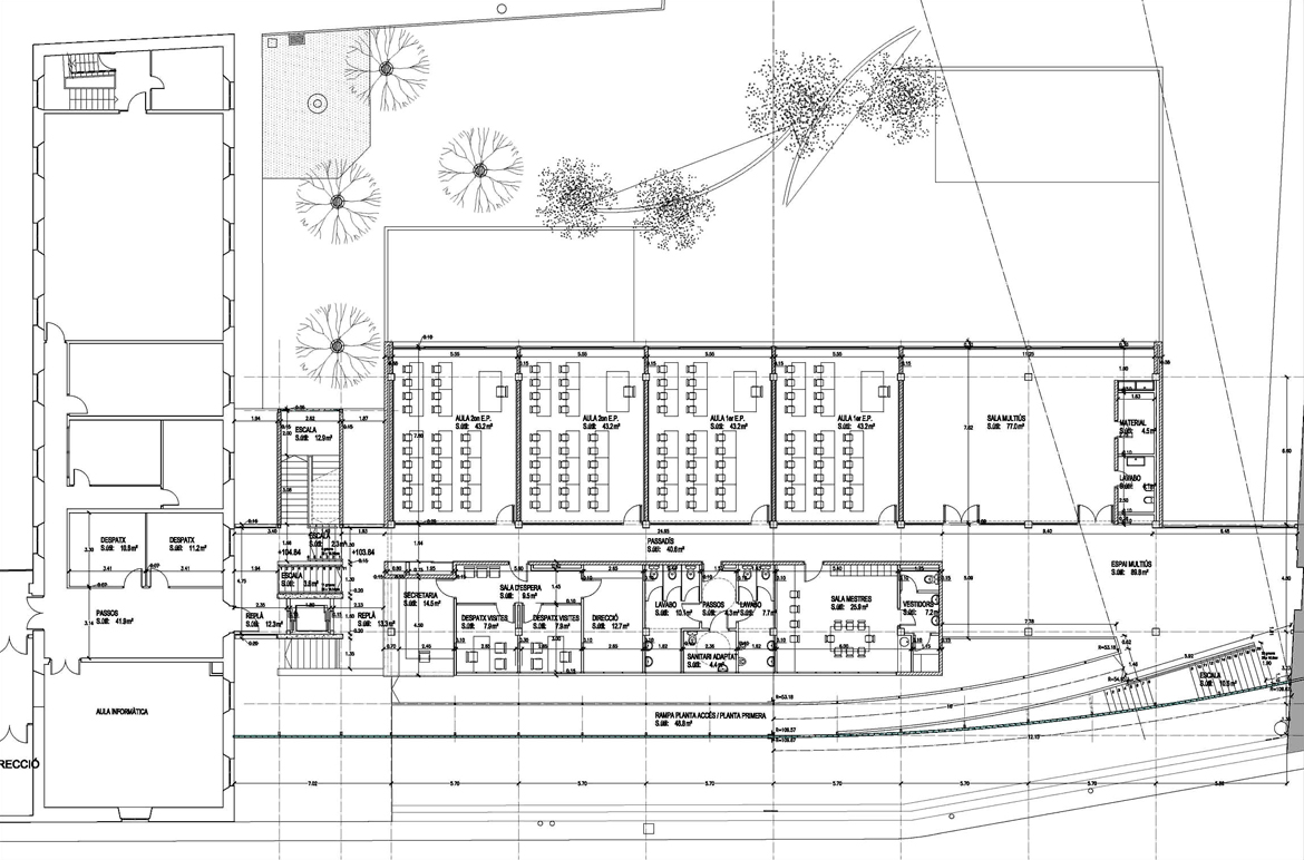
Palamós2005Promoteur: Frères des Ecoles Chrétiennes / Èquipe de rédaction: JORNETLLOPPASTOR / Collaborateurs: Martí Cabestany, structure; Gestión Integral de Projectes, installations / Typologie: Scolaire / Surface: 1.378 m². Architecture