Maison Miró-Nogué

Barcelona
2004

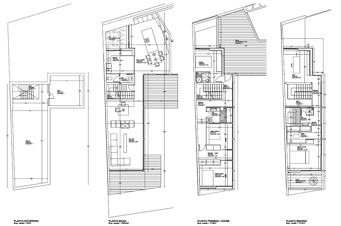
Promoteur: Privé / Èquipe de rédaction: JORNETLLOPPASTOR / Collaborateurs: - / Typologie: Maison Individuelle / Surface: 341,7 m².