Proyecto de Reparcelación del Sector la Vorada

Llinars del Vallès
2011

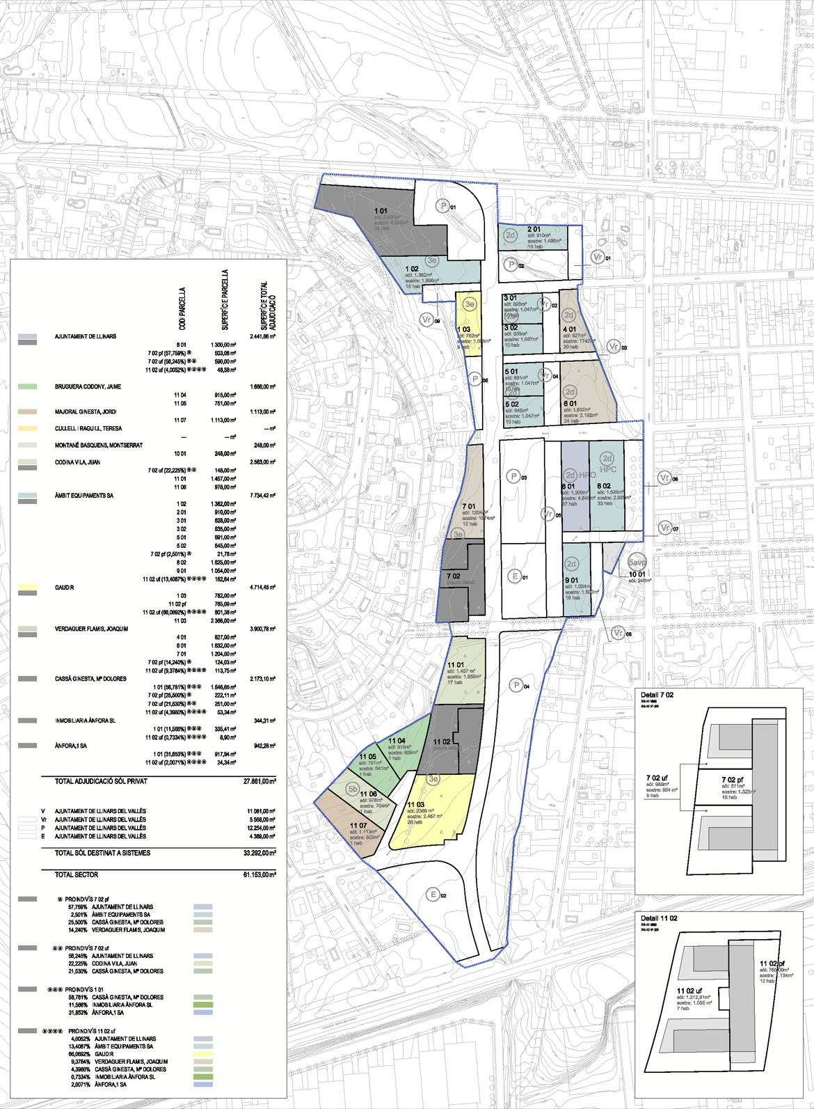
El objeto del presente Proyecto de reparcelación es definir el marco de referencia donde hacer efectiva la distribución de los beneficios y cargas derivadas de las determinaciones establecidas en el Plan Parcial del Sector La Vorada de Llinars del Vallès entre todos los propietarios –públicos y privados-, incluidos dentro del ámbito del polígono de actuación, con tal de formalizar las cesiones de los terrenos destinados a espacios libres, viales y equipamientos, y distribuir los aprovechamientos establecidos en el planeamiento que se ejecuta.

El ámbito objeto de reparcelación se localiza a poniente del núcleo urbano, entre el final del ensanche y la área urbana conocida como el Monte de los Tres Pins. Está delimitado a levante, por el ensanche y el torrente Matavaques, al norte, por la antigua carretera C-251, a poniente por el Monte de los Tres Pins, y a mediodía por la línea férrea y los sectores urbanizables industriales previstos en el Plan General.

El Proyecto presenta diversas peculiaridades, de las cuales, las más relevantes son:

1. Nos encontramos ante un sector que ya fue objeto de un anterior Proyecto de reparcelación, aprobado definitivamente por el Ayuntamiento de Llinars del Vallès el año 1990, inscrito en el Registro de la Propiedad pero que no se llegó a ejecutar nunca. Consecuentemente, al inicio de los trabajos no existía una correspondencia entre la realidad física de las fincas y su descripción registral.

2. Por otro lado, se ha de tener en cuenta que el ámbito nuevo del Plan Parcial tiene una superficie superior al preexiste de 1990. Esta ampliación del ámbito de planeamiento, supone la incorporación al sector de nuevos suelos que no fueron objeto de reparcelación en 1990 y que, por tanto, no realizaron ningún tipo de cesión para equipamientos, espacios libres ni 10% de aprovechamiento urbanístico. Delante de esta situación, y con tal de crear disputas comparativas entre los diferentes propietarios de las fincas aportadas, se acordó por parte de la Junta de Compensación la aplicación de un coeficiente sobre todas aquellas fincas o parte de fincas que no fueron objeto de reparcelación en el año 1990, que permitió regularizar el porcentaje de participación entre todos los propietarios.

3. Así mismo, con tal de evitar una duplicidad de cesiones a favor del Ayuntamiento, el presente Proyecto de reparcelación ha considerado que todas aquellas fincas aportadas por el Ayuntamiento de Llinars del Vallès y que provienen de la cesión obligatoria y gratuita de espacios libres, equipamientos, vialidad y servicios técnicos, así como del 10% de aprovechamiento urbanístico, previstas en el Proyecto de Reparcelación del año 1990, no generan derechos de aprovechamiento a favor del Ayuntamiento. Consecuentemente, en el marco del presente Proyecto de Reparcelación únicamente se adjudican al Ayuntamiento de Llinars del Vallès aquellos suelos de cesión obligatoria y gratuita que el Plan Parcial que ahora se ejecuta califica de sistema urbanístico del sector, libre de cargas de urbanización.

 

Promotor: Junta de compensación del Plan Parcial del Sector A "la Vorada" / Equipo redactor: JORNETLLOPPASTOR / Colaboradores: Àngels Gil-Vernet Abogados; Pere Santos Ingenieros Asociados S.A.