Escuela de educación infantil La Salle Bonanova

Barcelona
2005

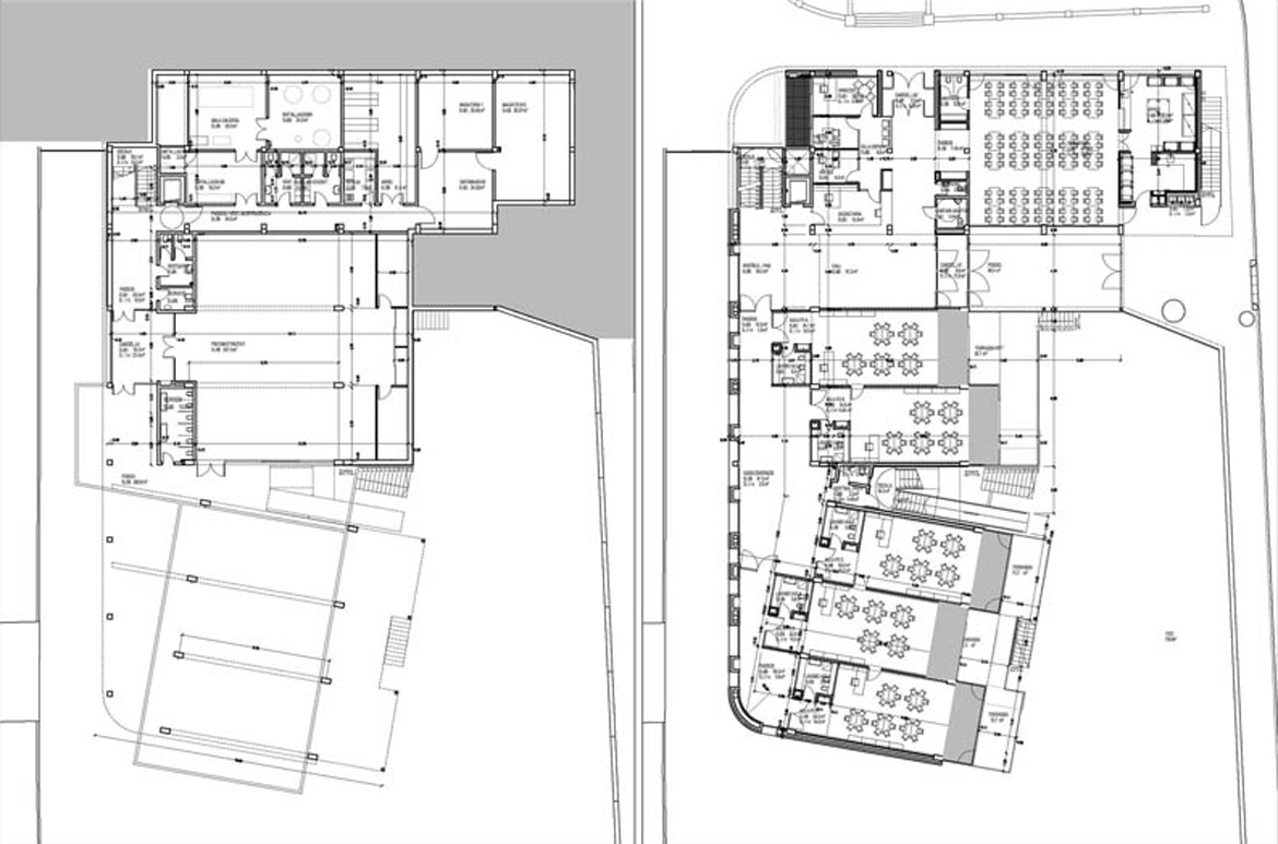
El Colegio La Salle Bonanova es un centro educativo en el cual era necesario implantar la enseñanza infantil. Se propuso una volumetría en forma de “L”, liberando de la parte del solar más comprometida la vegetación a conservar, al mismo tiempo que se insertaba de manera adecuada en el conjunto de edificios del recinto minimizando el impacto del nuevo edificio en el recinto del Colegio.

El edificio consta de planta baja y dos plantas piso con un subterráneo que se transforma en porche semi-subterráneo en la cota más baja del solar. La escuela se organiza en “L”, situándose en el vértice un núcleo de comunicación vertical. En este vértice del edificio se encuentra –en planta baja- el doble acceso, uno para los niños que llegan a pie, otro para los que llegan en vehículos privados y el espacio destinado a secretaría y dirección. En una de las alas se sitúan los servicios y aulas comunes, mientras que la otra aloja el aulario con 5 aulas en cada planta además de una sala para reuniones. La planta subterráneo de este cuerpo se destina en parte a sala de usos múltiples, y en parte a porche para el recreo en los días de lluvia, con acceso desde la escalera principal del edificio y desde el jardín.

El principal lugar de recreo lo constituye el jardín, en el que se ha conservado al máximo posible las especies vegetales existentes, y se ha implementado alguna plataforma de arenal y juegos infantiles. Se complementa la oferta de espacios de recreo con el porche ya descrito, las terrazas privadas de cada aula, y dos terrazas situadas en la planta segunda, una en cada uno de los extremos del edificio.

 

Promotor: Hermanos de las Escuelas Cristianas / Equipo redactor: JORNETLLOPPASTOR / Colaboradores: Martí Cabestany, estructura; Atanasio Iglesias, instalaciones / Tipología: Escolar / Superficie: 2.534 m².