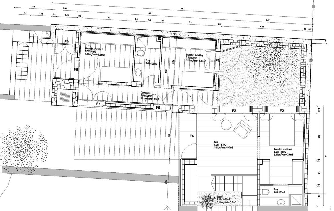
Miró House Extension

Selva de Mar
2000

Promoter: Private / Drafting team: JORNETLLOPPASTOR / Collaborators: Martí Cabestany, structure / Typology: Single-family House / Surface: 105 m².